Büroflächen - im White Plaza beim Bahnhof SBB, tolle Aussicht
Viaduktstrasse 42 4051 Basel
Availability date: to agree
Ref : #5640826
4th floor
Floor
to agree
Date of availability
About the property
Sie suchen einen repräsentativen Business-Standort an Top-Lage? Direkt neben der Markthalle, gegenüber der Tram-Haltestelle und in unmittelbarer Nähe zum Bahnhof SBB gelegen.
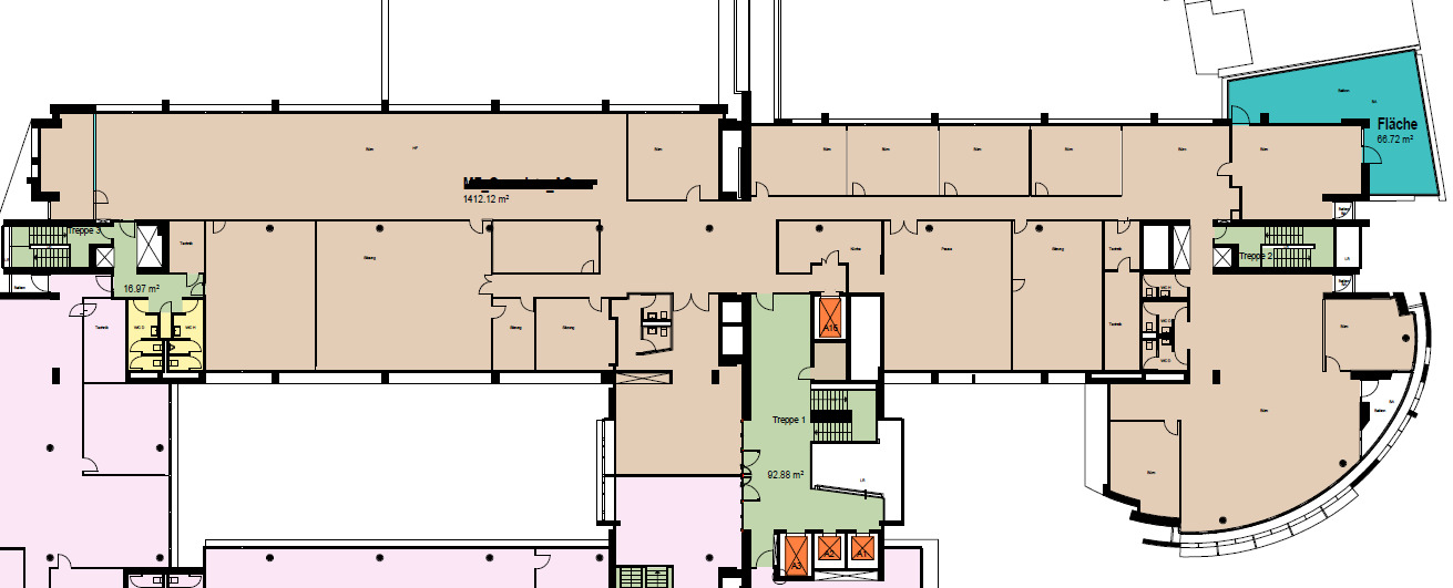
Im 4. Obergeschoss vermieten wir voll ausgebaute Büroräume. Insgesamt 1400m2 stehen Ihnen zur Verfügung, inklusive Küche und Cafeteria/Aufenthaltsraum. Eine Teilmiete von ca. 700m2 ist ebenfalls möglich.
Sie finden hier hochwertige Arbeitsplatzqualität in hellen Büros und angenehmem Raumklima mit einer schönen Aussicht über die Stadt Basel. Wie Sie dem Grundrissplan entnehmen können, ist die Fläche in Grossraumbüros, Einzelbüros und Sitzungszimmer aufgeteilt.
In der internen Tiefgarage können Parkplätze dazugemietet werden.
Für Auskünfte und zur Vereinbarung eines Besichtigungstermins stehen wir Ihnen gerne zur Verfügung.
Specifications
- Living area 0 m2
- Number of rooms 0.0
- Floor 4th floor
- Bedroom(s) 0
- WC 8
- Bathroom(s) 0
- Secondary residence Non
Construction details
- Year 1996
Facilities
- Air conditioning
- Alarm
- Bright/sunny
- Carpet
- Fitted kitchen
- Freight elevator
- Guests lavatory
- Loading dock
- Loading rack
- Natural light
- Underground car park
- Ventilation
- Wheelchair-friendly
Contact form
