BULLE / Maison individuelle de 6,5 pièces
Rue de Champ-Barby 39 1630 Bulle
Availability date: since 2026-01-01
Ref : #5396901












200 m2
Floor space
6.5
Number of rooms
since 2026-01-01
Date of availability
About the property
Nous vous proposons à la location une maison individuelle de 6,5 pièces sise dans un quartier résidentiel et privilégié de la ville de Bulle. Vous pourrez rejoindre la forêt de Bouleyres, l’école primaire de la Condémine ou même le centre ville en moins de 15 minutes à pieds.
Elle sera entièrement rénovée de manière écologique durant le 2ème semestre 2025 et vous offrira les prestations suivantes:
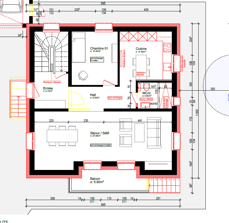
REZ
Séjour lumineux exposé plein Sud qui donne sur un balcon avec accès direct sur le jardin privatif
Cuisine neuve entièrement agencée et habitable
Salle d’eau neuve avec douche/WC
1 grande chambre
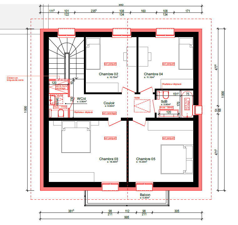
1ER ETAGE
4 grandes chambres
Salle d’eau avec baignoire/WC
Salle d’eau avec douche/WC
SOUS-SOL entièrement excavé
Plusieurs pièces de rangement à disposition
Local technique avec buanderie privative
Pour compléter cette location, un garage box double avec borne de recharge électrique ainsi que des places de parc extérieures seront mis à votre disposition.
Ce bien est proposé au prix de Fr. 3600.00 + charges individuelles.
N’hésitez pas à nous contacter pour plus de renseignements ou organiser une visite!
Specifications
- Floor space 200 m2
- Jardin 602 m2
- Number of rooms 6.5
- Bedroom(s) 5
- WC 3
- Bathroom(s) 3
- Secondary residence Non
Construction details
- Orientation South
Facilities
- Animals allowed
- Balcony/ies
- Bath
- box
- Bright/sunny
- Cellar
- Ceramic glass cooktop
- Connections for washing tower
- Dishwasher
- Dryer
- Eat-in-kitchen
- Exclusive use of garden
- Fence
- Fitted kitchen
- Freezer
- Fridge
- Furnished kitchen
- Garden
- Heating Access
- Internet connection
- Oven
- Parking
- Parquet floor
- Penthouse
- Quiet
- Shower
- Terrace/s
- Tiles
- Washing machine
- With character
- With front and rear view
Contact form
