Villa de 5.5 pièces haute performance énergétique avec jardin
-Estavayer-le-Lac
Availability date: to agree
Ref : #3594077
140 m2
Floor space
5.5
Number of rooms
to agree
Date of availability
About the property
Située dans le canton de Fribourg, Lieu dit “La Vounaise”, à 8 minutes de l’accès à l’autoroute, cette villa récente bénéficie d’un environnement particulièrement calme.
De conception moderne, elle est conçue selon les normes Haute Performance Energétique avec pompe à chaleur air/eau et panneaux solaires pour la production d’eau chaude.
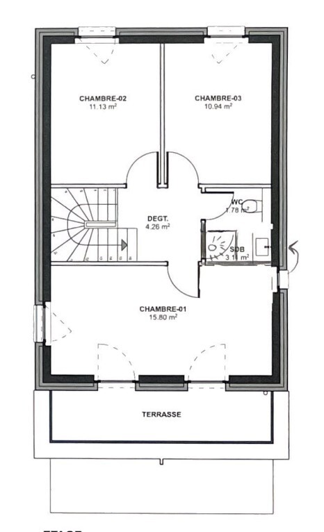
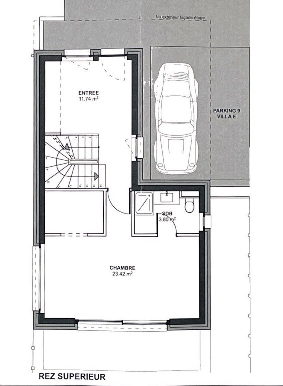
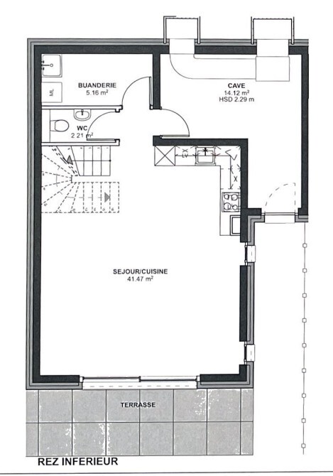
Particulièrement lumineuse, elle est composée d’une vaste pièce de vie ouverte sur la terrasse, de 4 chambres spacieuses dont une avec dressing, deux salles d’eau, un wc visiteurs, une buanderie et une cave.
Une place de parc couverte et une place de parc extérieure non comprises dans le prix, CHF 35’000.- en sus pour les deux places.
Une place de parc visiteur ainsi qu’un espace de parking occasionnel complètent ce bien.
Specifications
- Living area 140 m2
- Land area 245 m2
- Number of rooms 5.5
- Bedroom(s) 4
- WC 0
- Bathroom(s) 2
Construction details
- Year 2019
- Orientation South-East
Facilities
- Carport
- Cellar
- Dishwasher
- Dryer
- Fitted kitchen
- Fridge
- Induction cooker
- Microwave
- Open kitchen
- Oven
- Parking
- Washing machine
Contact form
