Ihr neues Zuhause: charmante 4-Zimmer-Wohnung in Binningen
Holeerain 37 4102 Binningen
Date de disponibilité : 01.10.2025
Ref : 11168.002.03020








91.8 m2
Surface
4.0
Nombre de pièces
3
Étage
01.10.2025
Date de disponibilité
À propos du bien
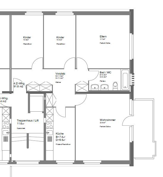
Wir vermieten nach Vereinbarung eine 4-Zimmerwohnung im 3. OG am Holeerain 37 in Binningen.
Highlights der Wohnung:
-
Moderne, offene Küche mit Glaskeramikkochfeld, Geschirrspüler und pflegeleichtem Plattenboden
-
Badezimmer mit Badewanne und Anschlussmöglichkeit für Waschmaschine
-
Lichtdurchflutetes Wohn- und Schlafzimmer mit Parkettboden
-
Praktische Einbauschränke im Korridor
-
Kellerabteil für zusätzlichen Stauraum
Ein Lift ist bei der Liegenschaft vorhanden.
Zur Mitbenutzung:
- Gemeinsame Waschküche und Trocknungsraum
- Gepflegte Gartenanlage
Optional:
Ein Einstellplatz in der Tiefgarage kann für CHF 115.-/Monat dazu gemietet werden.
Top-Lage:
Öffentliche Verkehrsmittel sowie Einkaufsmöglichkeiten sind in wenigen Gehminuten bequem erreichbar.
Haben wir Ihr Interesse geweckt? Kontaktieren Sie uns für einen Besichtigungstermin – wir freuen uns auf Ihre Anfrage!
Caractéristiques
- Surface habitable 91.8 m2
- Nombre de pièces 4.0
- Nombre d'étages 5
- Étage 3
- Résidence secondaire Non
Détails de la construction
- Année 1961
Équipements
- balcon
- Vue
Formulaire de contact
