Villa de 5.5 pièces haute performance énergétique avec jardin
-Estavayer-le-Lac
Date de disponibilité : à définir
Ref : #3594077
140 m2
Surface
5.5
Nombre de pièces
à définir
Date de disponibilité
À propos du bien
Située dans le canton de Fribourg, Lieu dit « La Vounaise », à 8 minutes de l’accès à l’autoroute, cette villa récente bénéficie d’un environnement particulièrement calme.
De conception moderne, elle est conçue selon les normes Haute Performance Energétique avec pompe à chaleur air/eau et panneaux solaires pour la production d’eau chaude.
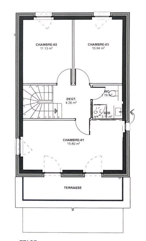
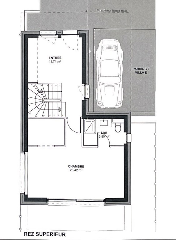
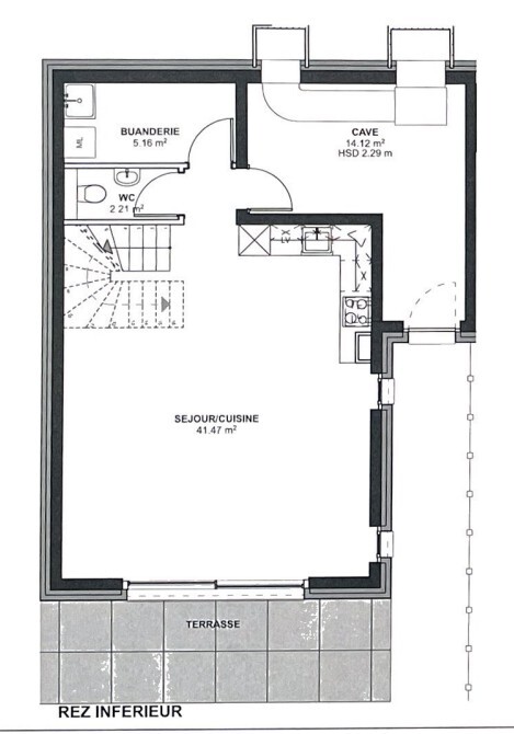
Particulièrement lumineuse, elle est composée d’une vaste pièce de vie ouverte sur la terrasse, de 4 chambres spacieuses dont une avec dressing, deux salles d’eau, un wc visiteurs, une buanderie et une cave.
Une place de parc couverte et une place de parc extérieure non comprises dans le prix, CHF 35’000.- en sus pour les deux places.
Une place de parc visiteur ainsi qu’un espace de parking occasionnel complètent ce bien.
Caractéristiques
- Surface habitable 140 m2
- Surface terrain 245 m2
- Nombre de pièces 5.5
- Chambre(s) 4
- WC 0
- Salle(s) de bain 2
Détails de la construction
- Année 2019
- Orientation Sud-Est
Équipements
- Cave
- Couvert à voiture
- Cuisine équipée
- Cuisine ouverte
- Four
- Four à micro-ondes
- Lave-linge
- Lave-vaisselle
- Parking
- Plaques à induction
- Réfrigérateur
- Sèche-linge
Formulaire de contact
