Wohnen im ruhigen Allschwil!

Maiengasse 9 4123 Allschwil

Date de disponibilité : 01.05.2022

Ref : 14940.04.1004

Loyer net 1’080 CHF/mois
Charges 215 CHF
Lien copié avec succès

52.0 m2

Surface

2.0

Nombre de pièces

1

Étage

01.05.2022

Date de disponibilité

À propos du bien

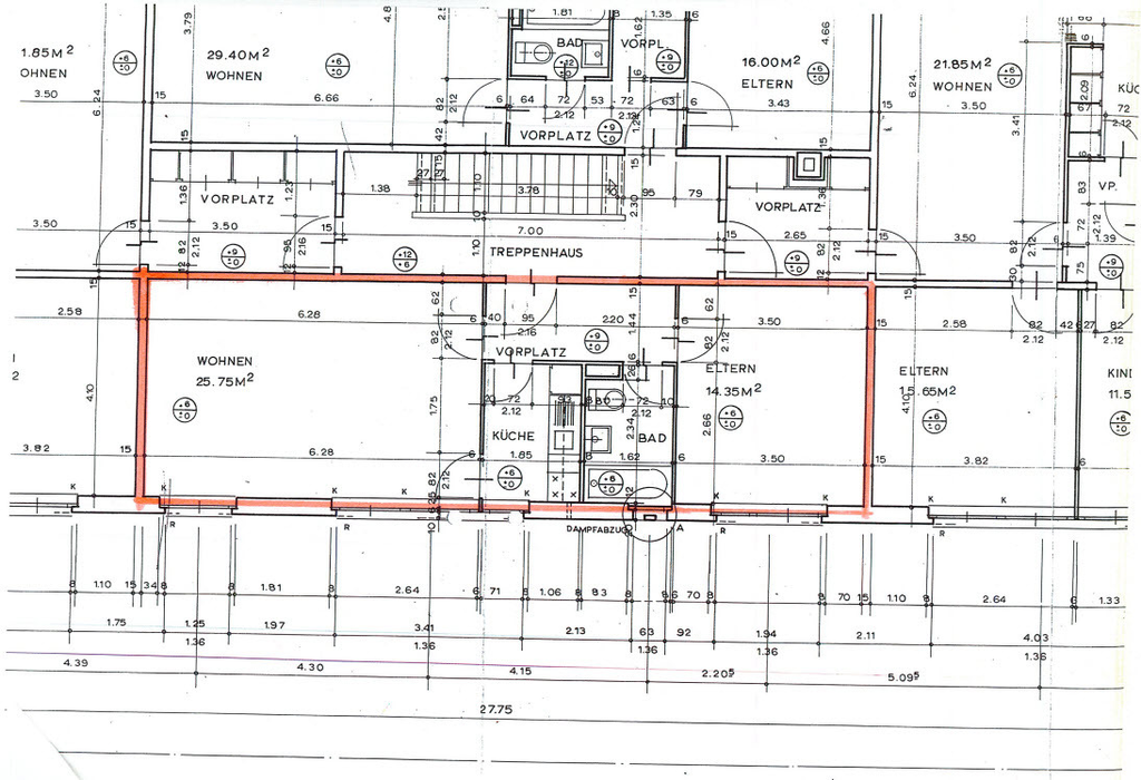
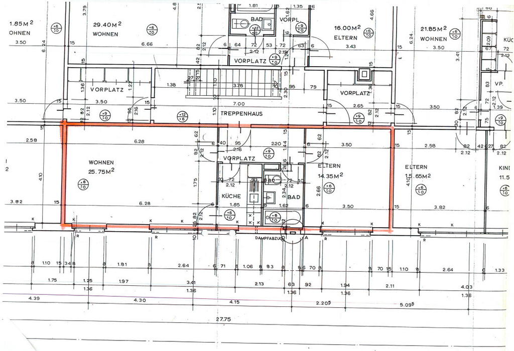
Per sofort oder nach Vereinbarung vermieten wir diese schöne und gut geschnittene 2-Zimmerwohnung im 1. Obergeschoss (ohne Lift) an der Maiengasse 9 in Allschwil.

Die ca. 52 m2 grosse Wohnung überzeugt durch einen durchdachten Grundriss und einen angenehmen Wohnkomfort:

  • Helle Küche mit Gaskochherd, Geschirrspüler sowie Kühlschrank mit Tiefkühlfach

  • Badezimmer mit Tageslicht, ausgestattet mit Badewanne, Toilette, Lavabo und Spiegelschrank

  • Praktisches Entrée mit Einbauschränken für zusätzlichen Stauraum

  • Schlafzimmer mit Linoleumboden und gemütliches Wohnzimmer mit Parkettboden

  • Küche, Badezimmer und Entrée sind mit pflegeleichten Plattenböden ausgestattet

Zur Wohnung gehört ein eigenes Kellerabteil. Zudem stehen eine gemeinschaftliche Waschküche sowie ein Veloabstellraum zur Mitbenützung zur Verfügung. Ein Balkon ist leider nicht vorhanden.

Die Liegenschaft liegt in einem ruhigen, familienfreundlichen Quartier. Einkaufsmöglichkeiten sowie öffentliche Verkehrsmittel sind bequem und schnell erreichbar.

Die nächsten Besichtigungstermine finden statt am:

  • Freitag, 17.04.2026 um 15.30 Uhr

  • Donnerstag, 23.04.2026 um 16.30 Uhr

  • Montag, 18. Mai 2026 um 16.30 Uhr

Falls Sie an einem dieser Besichtigungstermine teilnehmen möchten, kontaktieren Sie uns bitte per E-Mail an kim.zimmerli@vimova.ch.

Bitte geben Sie Ihren Namen sowie Ihre Telefonnummer an und teilen Sie uns mit, an welchem Termin Sie teilnehmen möchten.

Hinweis: Bei den dargestellten Bildern handelt es sich um Beispielbilder. Abweichungen sind möglich.

Kim Désirée Zimmerli

Vimova Bewirtschaftung AG

Caractéristiques

  • Surface habitable 52.0 m2
  • Nombre de pièces 2.0
  • Étage 1
  • Résidence secondaire Non

Détails de la construction

  • Année 1968
  • Chauffage Oui
  • Eaux usées Oui

Équipements

  • balcon
  • Vue

Formulaire de contact

    Civilité*
    Nom de famille*
    Prénom*
    Téléphone
    E-Mail*
    Message