Zentraler Gewerbe-Standort: Büro-/Lagerflächen, Onlineshop

Viaduktstrasse 42 4051 Basel

Date de disponibilité : à définir

Ref : #5956879

160 CHF/m²/an CHF/mois
Charges 40 CHF/m²/an CHF
Lien copié avec succès

2ème Sous-sol

Étage

à définir

Date de disponibilité

À propos du bien

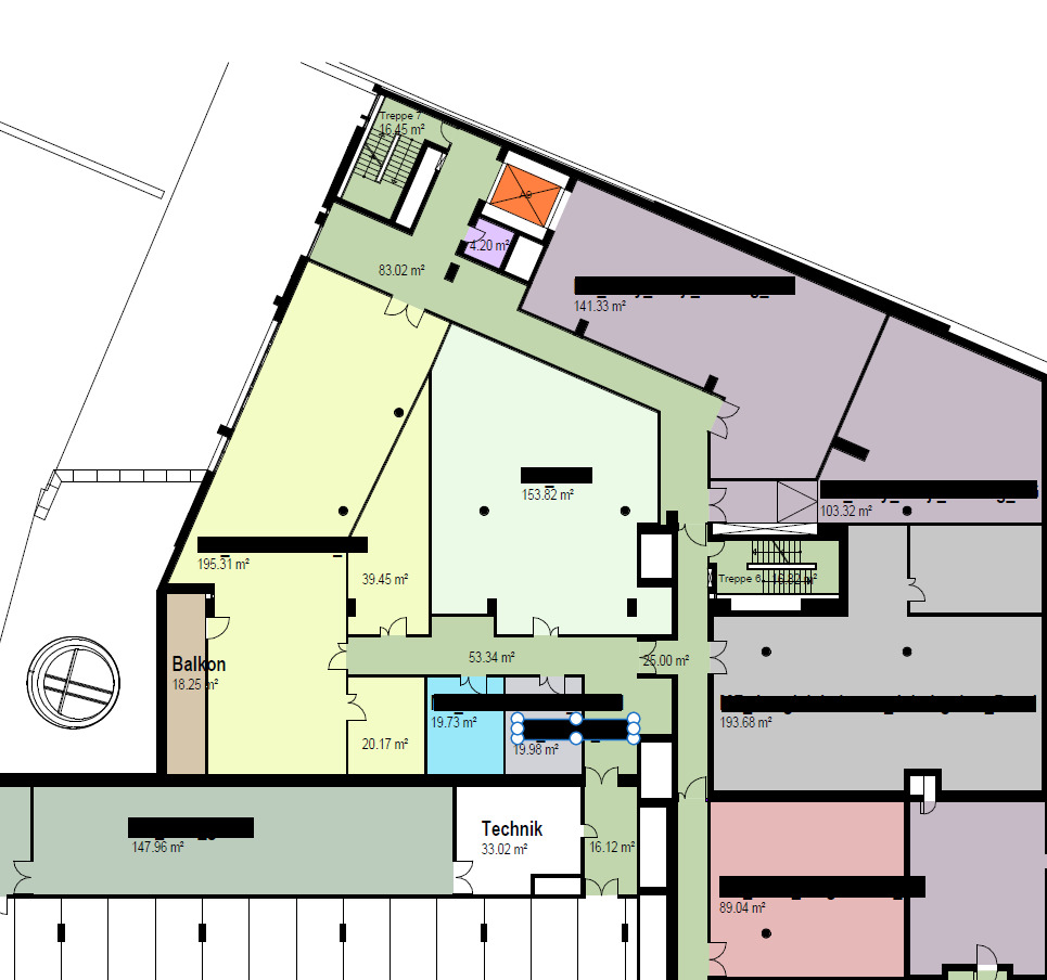
An hervorragender Lage, in unmittelbarer Nähe zum Bahnhof SBB bieten diese Räumlichkeiten Platz zum konzentrierten Arbeiten und zum Lagern von Waren – ideal z. B. für Büros, für Ihren Onlineshop oder Ihr IT-Unternehmen. Die Fläche ist nicht geeignet, um regelmässig Kunden zu empfangen. Sie befindet sich im 2. Untergeschoss.

Die Fläche ist aktuell unterteilt in:
– Einen ca. 195 m2 grossen Raum (im Grundriss-Foto hellgrün), der an der Fensterfront über viel Tageslicht verfügt.
– Eine ca.20 m2 grosse Fläche (im Grundriss-Foto hellgrün), die als Sitzungszimmer genutzt wurde (kein Tageslicht).

– Eine ca.40 m2 grosse Fläche (im Grundriss-Foto hellgrün), die als Lager genutzt wurde (kein Tageslicht).

Bei Bedarf kann die Raumaufteilung angepasst werden.
Eine Zufahrt für die Anlieferung von Waren ist vorhanden.

Für Auskünfte und zur Vereinbarung eines Besichtigungstermins stehen wir Ihnen gerne zur Verfügung.

Alex Blindenbacher

Vimova

Caractéristiques

  • Surface utile 262 m2
  • Nombre de pièces 0.0
  • Nombre d'étages 0
  • Étage 2ème Sous-sol
  • WC 1
  • Salle(s) de bain 0

Détails de la construction

  • Année 1997

Équipements

  • Ascenseur
  • Lumière naturelle
  • Parking souterrain
  • Stratifié

Formulaire de contact

    Civilité*
    Nom*
    Prénom*
    Téléphone
    Email*
    Message