*Exklusiv und naturverbunden Wohnen!*
Zollikerstrasse 203e 8008 Zürich
Ref : 18401.001.00010
2.5
Zimmer
Über die Immobilie
Im Herzen des begehrten Stadtquartiers Zürich-Riesbach entstanden Ende 2016 zwischen Zolliker- und Südstrasse, umsäumt von mächtigen Bäumen an einem sanft abfallenden Südhang, exklusive Mietwohnungen an einzigartiger Wohnanlage.
Das Gestaltungskonzept des renommierten Architekten Andres Carosio setzt auf moderne Schlichtheit und höchste Bauqualität. Die eleganten und kein bisschen protzig wirkenden Häuser fügen sich farblich harmonisch in die Parklandschaft ein. In den vorgehängten, grüngrauen Glanzglasfassaden spiegeln sich Bäume und Sträucher der Umgebung.
Wir vermieten per sofort oder nach Vereinbarung eine exklusive
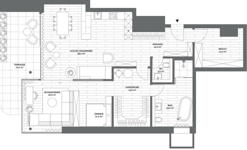
2.5-Zimmer-Wohnung im EG mit 117 m2 Wohnfläche und 21 m2 grosser Terrasse.
Für Ihr Fahrzeug steht zudem Platz in der hauseigenen Tiefgarage zur Verfügung. Ein Einstellplatz kostet CHF 330.00 pro Monat.
Gerne stehen wir Ihnen für ergänzende Auskünfte zur Verfügung und freuen uns auf Ihre Kontaktaufnahme.
Bitte beachten Sie, dass es sich bei den Bildern um Vermietungsfotos handelt, welche den Ausbaustandard widerspiegeln.
Merkmale
- Wohnfläche m2
- Zimmer 2.5
- Zweitwohnsitz Nein
Kontaktformular
