Nähe Bahnhof: Büro-/Gewerberäume mit 21 bis 232 Quadratmetern
Bahnhofstrasse 96 5000 Aarau
Datum der Verfügbarkeit : sofort
Ref : AA-BS96-15-232
160 CHF/m²/Jahr CHF/Monat
Nebenkosten 45 CHF/m²/Jahr CHF
sofort
Datum der Verfügbarkeit
Über die Immobilie
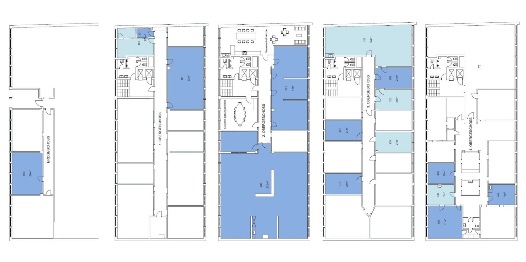
Wir vermieten diverse Büro- und Gewerberäume von 21 bis zu 232 Quadratmetern in unmittelbarer Nähe zum Bahnhof in Aarau:
- Raum 003, ca. 35 m2 im Erdgeschoss: CHF 598 pro Monat inkl. Nebenkosten
- Räume 102+101, ca. 27 m2 im 1. Obergeschoss (Büroraum + Abstellraum): CHF 461 pro Monat inkl. Nebenkosten
- Raum 201, ca. 81 m2 im 2. Obergeschoss: CHF 1’384 pro Monat inkl. Nebenkosten
- Räume 203, ca. 232 m2 im 2. Obergeschoss (2 Grossraumbüros, 1 Sitzungszimmer, Serverraum): CHF 3’963 pro Monat inkl. Nebenkosten
- Raum 301, ca. 82 m2 im 3. Obergeschoss (mit Lavabo): CHF 1’401 pro Monat inkl. Nebenkosten
- Raum 303, ca. 21 m2 im 3. Obergeschoss (mit Verbindungstür zu 302): CHF 359 pro Monat inkl. Nebenkosten
- Raum 312, ca. 21 m2 im 3. Obergeschoss: CHF 359 pro Monat inkl. Nebenkosten
Zur allgemeinen Nutzung stehen ein Sitzungszimmer und eine Gemeinschaftsküche sowie WCs in den Obergeschossen zur Verfügung.
Autoeinstellplätze in der benachbarten Tiefgarage können für CHF 200 pro Monat hinzugemietet werden.
Da für das Grundstück eine neue Bebauung in Planung ist, werden die Räume im jetzigen Zustand befristet bis Ende März 2027 vermietet.
Für weitere Auskünfte und zur Vereinbarung eines Besichtigungstermins stehen wir Ihnen gerne zur Verfügung.
Merkmale
- Nutzfläche 15 m2
- Zimmer 0.0
- Anzahl der Etagen 7
- WC 4
- Bad (Bäder) 0
Ausstattung
- Einstellhallenplatz
- Lift
Kontaktformular
