Vollständig ausgebaute Bürofläche am Bahnhof Bülach
Trafostrasse 1 8180 Bülach
Datum der Verfügbarkeit : zu definieren
Ref : 5616021
2. Stock
Stockwerk
zu definieren
Datum der Verfügbarkeit
Über die Immobilie
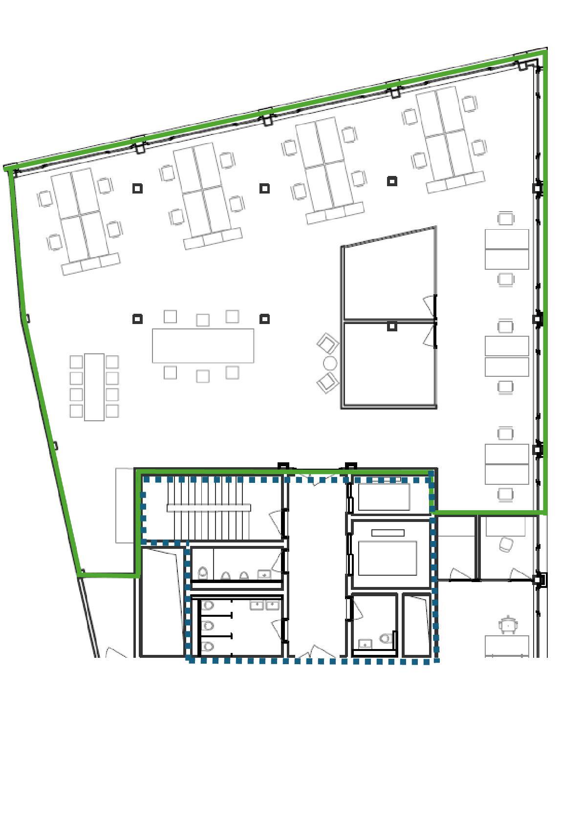
An zentraler, verkehrsgünstiger Lage beim Bahnhof Bülach vermieten wir eine vollständig ausgebaute Bürofläche. Der offene Grundriss erlaubt flexible Gestaltungsmöglichkeiten und kann an Ihre Bedürfnisse angepasst werden. Die beiden bereits ausgebauten, verglasten Besprechungsräume bieten Raum für den Austausch. Die grossen Fensterfronten machen das Büro hell und offen. Auch besticht die Bürofläche mit folgenden Eigenschaften:
- Ausgebaute Küche
- Ausgebaute Strom-/ Internetanschlüsse sowie Bürobeleuchtung
- Elektrische Lamellen
- Ausgebaute, getrennte WC-Anlagen inkl. IV-WC
- Mitbenutzung einer grosszügigen Terrasse im 3. OG, der Cafeteria im EG und der Anlieferungsrampe mit Warenaufzug
- Mitbenutzung von Duschen und Garderoben im Untergeschoss der Liegenschaft
Die Bürofläche befindet sich inmitten des neuen Glasi-Quartiers in Bülach und bietet einen optimalen Verkehrsanschluss. Innerhalb von wenigen Gehminuten erreichen Sie den Bahnhof Bülach, diverse Einkaufsmöglichkeiten (Coop, Denner) sowie zahlreiche Restaurants. Vom Bahnhof Bülach erreichen Sie den Zürcher HB in 22 Minuten, Winterthur in 24 Minuten und den Flughafen Zürich innert 23 Minuten. Ausserdem verfügt das Glasi-Quartier über eine Vielfalt an Dienstleistungsgeschäften (Coiffeur, Reisebüros, etc.).
Für die Anreise mit dem Auto stehen diverse Besucherparkplätze direkt vor dem Haus sowie in der Tiefgarage zur Verfügung. Auch können Auto-Einstellplätze sowie Aussenparkplätze zur Fläche dazu gemietet werden.
Die attraktive Mietzinsstaffelung soll den Start im neuen Büro vereinfachen und bildet sich wie folgt ab:
- 1. Jahr 160 m2/Jahr
- 2. Jahr 180 m2/Jahr
- 3. Jahr 200 m2/Jahr
- 4. Jahr 220 m2/Jahr
- 5. Jahr 240 m2/Jahr
Bei Fragen oder einem individuellen Besichtigungstermin sind wir gerne für Sie da. Wir freue uns auf Ihre Kontaktaufnahme.
Merkmale
- Nutzfläche 332 m2
- Zimmer 0.0
- Stockwerk 2. Stock
- WC 0
- Bad (Bäder) 3
Konstruktionsdetails
- Baujahr 2024
- Heizung Radiator
Ausstattung
- Behindertengerecht
- Besucherparkplätze
- Einstellhallenplatz
- garage
- Gedeckter Parkplatz
- Geschirrspüler
- Hell
- Kochnische
- Kühlschrank
- Lift
- Linoléum
- LKW Laderampe
- Lüftung
- Möblierte Küche
- Moderne Küche
- Parkplatz
- Stromanschluss
- Terrasse(n)
- Tiefgarage
- Vollausbau
- Von der Autobahn
- Wasseranschluss
Kontaktformular
