BULLE / Maison individuelle de 6,5 pièces
Rue de Champ-Barby 39 1630 Bulle
Datum der Verfügbarkeit : seit 2026-01-01
Ref : 5396901
200 m2
Fläche
6.5
Zimmer
seit 2026-01-01
Datum der Verfügbarkeit
Über die Immobilie
Nous vous proposons à la location une maison individuelle de 6,5 pièces sise dans un quartier résidentiel et privilégié de la ville de Bulle. Vous pourrez rejoindre la forêt de Bouleyres, l’école primaire de la Condémine ou même le centre ville en moins de 15 minutes à pieds.
Elle sera entièrement rénovée de manière écologique durant le 2ème semestre 2025 et vous offrira les prestations suivantes:
REZ
Séjour lumineux exposé plein Sud qui donne sur un balcon avec accès direct sur le jardin privatif
Cuisine neuve entièrement agencée et habitable
Salle d’eau neuve avec douche/WC
1 grande chambre
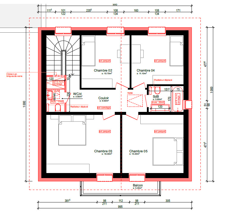
1ER ETAGE
4 grandes chambres
Salle d’eau avec baignoire/WC
Salle d’eau avec douche/WC
SOUS-SOL entièrement excavé
Plusieurs pièces de rangement à disposition
Local technique avec buanderie privative
Pour compléter cette location, un garage box double avec borne de recharge électrique ainsi que des places de parc extérieures seront mis à votre disposition.
Ce bien est proposé au prix de Fr. 3600.00 + charges individuelles.
N’hésitez pas à nous contacter pour plus de renseignements ou organiser une visite!
Merkmale
- Wohnfläche 200 m2
- Grundstücksfläche 602 m2
- Zimmer 6.5
- Schlafzimmer 5
- WC 3
- Bad (Bäder) 3
- Zweitwohnsitz Nein
Konstruktionsdetails
- Orientierung Süden
Ausstattung
- Anschlüsse für Wasch-Trocken-Säule
- Backofen
- Badewanne
- Balkon(e)
- box
- Dusche
- Exklusive Gartennutzung
- Fliesen
- Garten
- Geschirrspüler
- Glaskeramik
- Haustiere gestattet
- Hell
- Internetanschluss
- Keller
- Kühlschrank
- Lichtdurchflutet
- Mansardé
- Mit Charme
- Möblierte Küche
- Moderne Küche
- Parkett
- Parkplatz
- Ruhige Lage
- Terrasse(n)
- Tiefkühler
- Wäschetrockner
- Waschmaschine
- Wohnküche
- Zaun
- Zugang zur Heizung
Kontaktformular
