Erstbezug Altbau-Loft-Maisonette mit Cheminée auf 120 m2
Universitätstrasse 33 8006 Zürich
Datum der Verfügbarkeit : sofort
Ref : 5497173
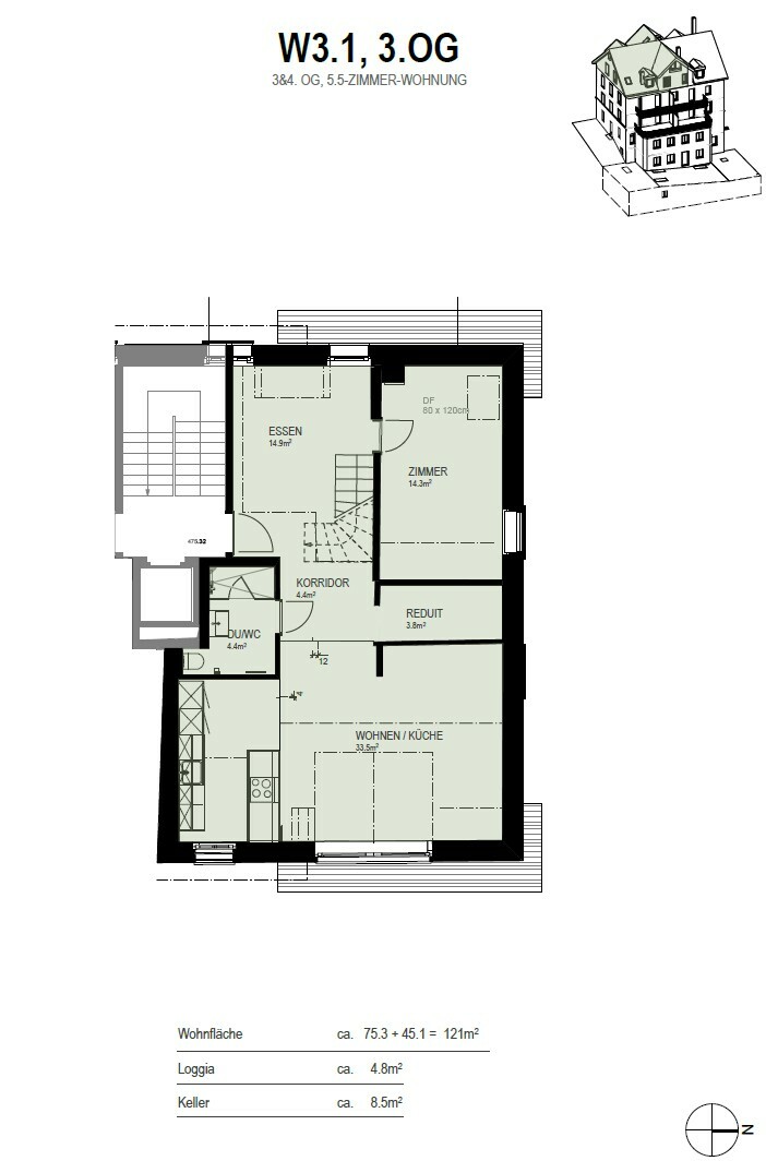
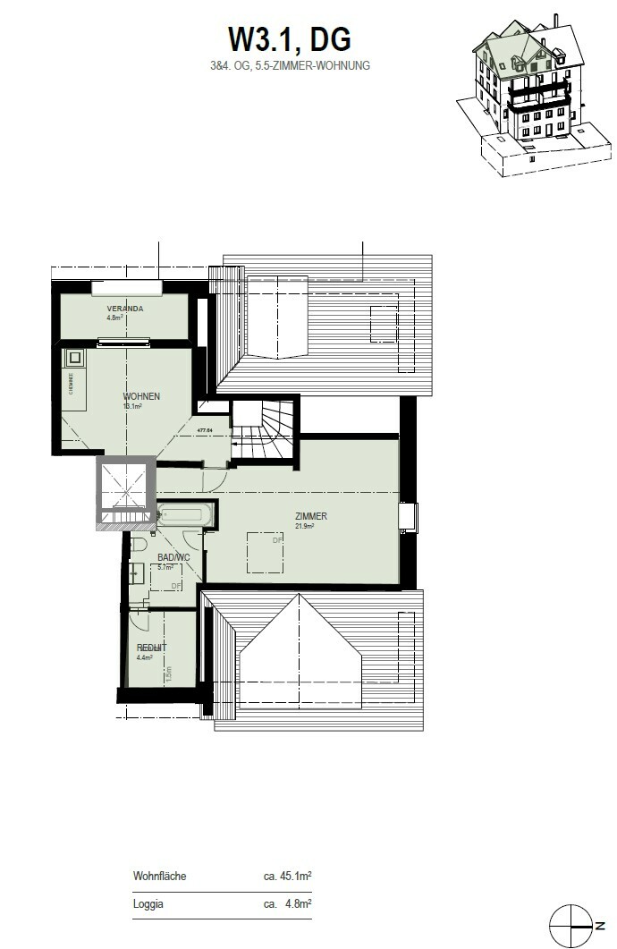
121 m2
Fläche
4.5
Zimmer
3. Stock
Stockwerk
sofort
Datum der Verfügbarkeit
Über die Immobilie
Erstbezug nach Sanierung
An der frisch renovierten Universitätstrasse 33 in Zürich erwartet Sie eine stilvolle 4.5-Zimmer-Maisonette-Wohnung mit dem besonderen Flair eines Altbaus und dem offenen Raumgefühl eines modernen Lofts. Auf ca. 120 m² Wohnfläche wurde ein hochwertiges Wohnkonzept realisiert – ideal für anspruchsvolle Berufstätige, Ärzte oder Paare mit Sinn für Qualität.
Exklusive Raumaufteilung:
- Zwei grosse Schlafzimmer – grosszügig geschnitten und ideal für Menschen, die bewusst auf Raum und Privatsphäre setzen.
- Zwei moderne Badezimmer, davon ein Masterbad mit direktem Zugang zum Hauptschlafzimmer – perfekt für persönlichen Komfort.
- Offener Wohn- und Essbereich mit Cheminée – das stilvolle Cheminée bildet das Herzstück des Wohnraums und schafft eine warme, einladende Atmosphäre.
Weitere Highlights:
- Design-Küche mit Kochinsel: Grosszügig, offen und perfekt für gesellige Kochabende oder stilvolle Dinner.
- Neuer Eichen-Schlossdielen Parkett: Verleiht der gesamten Wohnung eine hochwertige, wohnliche Ausstrahlung.
- Balkon/Veranda: Eine kleine grüne Auszeit mitten in der Stadt.
- Lift vorhanden: Bequemer Zugang bis vor die Wohnungstür – ein echtes Plus im Altbau.
Lage für höchste Ansprüche:
Die zentrale Lage nahe Universität, ETH, Universitätsspital sowie dem Zürcher Banken- und Geschäftsviertel macht diese Wohnung besonders attraktiv für Universitätspersonal, Ärzte und Professionals und medizinisches Fachpersonal. Die hervorragende Anbindung an den öffentlichen Verkehr und die Nähe zu Freizeit-, Kultur- und Einkaufsmöglichkeiten runden das urbane Gesamtbild ab. Parkplätze sind vorhanden.
Merkmale
- Wohnfläche 121 m2
- Zimmer 4.5
- Stockwerk 3. Stock
- Schlafzimmer 2
- WC 0
- Bad (Bäder) 2
- Zweitwohnsitz Nein
Konstruktionsdetails
- Heizung Radiator
Ausstattung
- Abstellraum
- Backofen
- Badewanne
- Balkon(e)
- Cheminée
- Dreifachverglasung
- Dusche
- Galerie
- Gäste-WC
- Gegensprechanlage
- Geschirrspüler
- Glasfaser
- Haustiere gestattet
- Hell
- Induktionsherd
- Keller
- Kochinsel
- Kühlschrank
- Lift
- Mit Charme
- Moderne Küche
- Parkett
- Parkplatz
- Sichtbalken
- Tiefkühler
- Véranda
- Wäschetrockner
- Waschmaschine
Kontaktformular
